Перепланировка квартир в серии П-55М |
|||
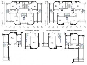
| Тип дома: панельный. Планировочное решение: состоит из рядовых и торцевых четырехквартирных секций с 1,2,3,4-х комнатными квартирами. Этажность: 12, 14, 16 этажей. Высота потолков: 2,64 м. Технические помещения: техподполье и чердак для размещения инженерных коммуникаций. Лифты: два пассажирских грузоподъемностью 400 кг. Строительные конструкции: наружные стены — трехслойные самонесущие панели с эффективным утеплителем, толщина стен 340 мм, внутренние несущие стены — железобетонные панели, толщиной 140, 180 мм, перегородки — гипсобетонные, толщиной 80мм, перекрытия — железобетонные панели, толщиной 140мм. Мусороудаление: мусоропровод с загрузочным клапаном на каждом этаже. |
|||
План однокомнатной квартиры серии П-55М
План двухкомнатной квартиры серии П-55М
План трехкомнатной квартиры серии П-55М
План четырехкомнатной квартиры серии П-55М
перепланировка однокомнатной квартиры П-55М
перепланировка двухкомнатной квартиры П-55М
перепланировка трехкомнатной квартиры П-55М













