ГОСТ Р ЕН 1849-1-2009 Материалы кровельные и гидроизоляционные гибкие битумосодержащие Методы определения толщины и массы на единицу площади

Автор: | 17.02.2015

ГОСТ Р EH 1849-1-2009


Группа Ж19


НАЦИОНАЛЬНЫЙ СТАНДАРТ РОССИЙСКОЙ ФЕДЕРАЦИИ


МАТЕРИАЛЫ КРОВЕЛЬНЫЕ И ГИДРОИЗОЛЯЦИОННЫЕ ГИБКИЕ БИТУМОСОДЕРЖАЩИЕ

Методы определения толщины и массы на единицу площади

Roofing, hydraulic-insulating, flexible, bitumen-based materials. Methods for determination of thickness and mass per unit area



ОКС 91.100.99

Дата введения 2010-09-01

     

Предисловие

Цели  и принципы стандартизации в Российской Федерации установлены Федеральным законом от 27 декабря 2002 г. N 184-ФЗ "О техническом регулировании", а правила применения национальных стандартов Российской Федерации — ГОСТ Р 1.0-2004 "Стандартизация в Российской Федерации. Основные положения"

Сведения  о стандарте

1  ПОДГОТОВЛЕН Научно-исследовательским институтом строительной физики Российской академии архитектуры и строительных наук (НИИСФ РААСН) на основе выполненного Открытым акционерным обществом "Центр методологии нормирования и стандартизации в строительстве" (ОАО "ЦНС") аутентичного перевода регионального стандарта, указанного в пункте 4

2  ВНЕСЕН Техническим комитетом по стандартизации ТК 465 "Строительство"

3  УТВЕРЖДЕН И ВВЕДЕН В ДЕЙСТВИЕ Приказом Федерального агентства по техническому регулированию и метрологии от 8 декабря 2009 г. N 591-ст

4  Настоящий стандарт идентичен европейскому стандарту ЕН 1849-1:1999 "Материалы гибкие гидроизоляционные — Определение толщины и массы на единицу площади — Часть 1: Материалы кровельные и гидроизоляционные битумосодержащие" (EN 1849-1:1999 "Flexible sheets for waterproofing — Determination of thickness and mass per unit area — Part 1: Bitumen sheets for roof waterproofing").

Наименование  настоящего стандарта изменено по отношению к наименованию европейского стандарта для приведения в соответствие с ГОСТ Р 1.5-2004 (подраздел 3.5).

При  применении настоящего стандарта рекомендуется вместо ссылочного европейского стандарта использовать соответствующий ему национальный стандарт Российской Федерации, сведения о котором приведены в дополнительном приложении А

5  ВВЕДЕН ВПЕРВЫЕ

Информация  об изменениях к настоящему стандарту публикуется в ежегодно издаваемом информационном указателе "Национальные стандарты", а текст изменений и поправок — в ежемесячно издаваемых информационных указателях "Национальные стандарты". В случае пересмотра (замены) или отмены настоящего стандарта соответствующее уведомление будет опубликовано в ежемесячно издаваемом информационном указателе "Национальные стандарты". Соответствующая информация, уведомление и тексты размещаются также в информационной системе общего пользования — на официальном сайте Федерального агентства по техническому регулированию и метрологии в сети Интернет

Введение

Применение  настоящего стандарта, устанавливающего методы определения толщины и массы на единицу площади кровельных и гидроизоляционных гибких битумосодержащих материалов, позволяет получить адекватную оценку качества материалов, производимых в Российской Федерации и странах ЕС, обеспечить конкурентоспособность российской продукции на международном рынке, активизировать участие Российской Федерации в работе по международной стандартизации.

Настоящий  стандарт применяют, если заключенные контракты или другие согласованные условия предусматривают применение кровельных и гидроизоляционных гибких битумосодержащих материалов с характеристиками, гармонизированными с требованиями европейских стандартов, а также в случаях, когда это технически и экономически целесообразно.

     1 Область применения

Настоящий  стандарт распространяется на кровельные и гидроизоляционные гибкие битумосодержащие материалы (далее — материалы) и устанавливает методы определения их толщины и массы на единицу площади.

Метод  определения толщины распространяется на большинство материалов, в том числе на материалы с крупнозернистой минеральной посыпкой. Метод не применим для определения толщины материалов с выраженной текстурированной поверхностью или со значительным волокнистым дублирующим слоем, нанесенным на нижнюю сторону полотна. Для характеристики таких материалов целесообразно определять массу материала на единицу площади.

Метод  определения массы материала на единицу площади не распространяется на перфорированные материалы.

     

     2 Нормативные ссылки

В  настоящем стандарте использована ссылка на следующий европейский стандарт:

ЕН  13416:2001 Материалы гибкие гидроизоляционные — Материалы кровельные и гидроизоляционные битумосодержащие и полимерные (термопластичные или эластомерные) — Правила отбора образцов

     3 Термины и определения

В  настоящем стандарте применены следующие термины с соответствующими определениями:

3.1  толщина (thickness): Размер полотна материала, измеренный в направлении, перпендикулярном к поверхности полотна.

3.2  выраженная текстурированная поверхность (pronounced surface texture): Текстурный рисунок или тиснение на одной или обеих поверхностях полотна материала, изменяющий толщину материала более чем на 10%.

3.3  значительный волокнистый дублирующий слой (substantial fibrous backing): Слой из тканых или нетканых синтетических волокон массой более 80 г/м, нанесенный на нижнюю поверхность полотна материала.

3.4  тиснение (emboss): Текстурный рисунок, который специально наносится на одну или обе поверхности полотна материала при его изготовлении.

3.5  кромка (selvedge): Часть полотна материала, не покрытая крупнозернистой посыпкой или другим защитным слоем и предназначенная для соединения полотен материала внахлест.

     4 Определение толщины материала

4.1  Сущность метода

Толщину  полотна испытуемого материала измеряют в 10 местах, выбранных случайным образом по ширине полотна. За толщину материала принимают среднеарифметическое значение результатов всех измерений.

4.2  Средства измерений

Устройство  для измерения толщины (толщиномер) с ценой деления не более 0,01 мм. Контактные площадки толщиномера должны быть плоскими, диаметр контактной площадки — 10 мм, давление на образец в месте измерения — 20 кПа.

4.3  Отбор и подготовка образцов

4.3.1  Отбор образцов

Для  проведения измерений отбирают полный неповрежденный рулон материала в соответствии с ЕН 13416.

4.3.2  Подготовка образцов

От  отобранного рулона по всей ширине полотна отрезают полосу длиной не менее 100 мм.

4.3.3  Кондиционирование образцов

Измерения  проводят в условиях окружающей среды без предварительной выдержки и кондиционирования образцов.

В  случае разногласий измерения проводят при температуре (23±2) °С после кондиционирования материала при этой температуре не менее 20 ч.

4.4  Методика проведения измерений

На  участке образца, выбранном для измерения, и на поверхностях контактных площадок не должно быть загрязнений. Перед проведением измерения и после каждой серии измерений устанавливают нулевое положение измерительного устройства.

При  проведении измерений контактную площадку мягко (во избежание деформирования образца) опускают на образец материала. Измеряют и регистрируют толщину полотна в 10 местах, выбранных случайным образом по ширине полотна материала. Крайние измерения должны быть сделаны на расстоянии (100±1) мм, а со стороны кромки — на расстоянии (110±1) мм от каждого края полотна.

4.5  Обработка результатов измерений

4.5.1  Результаты измерения толщины

Толщину  полотна материала, мм, вычисляют как среднеарифметическое значение 10 результатов измерений, проведенных в соответствии с 4.4, округленное до 0,1 мм.

4.5.2  Точность метода

Настоящий  стандарт не содержит данных о точности метода, однако предполагается, что погрешность измерения толщины не должна превышать ±0,1 мм.

     

     5 Определение массы материала на единицу площади

5.1  Сущность метода

Взвешивают  образцы, вырубленные из полосы материала, отобранной для испытаний. За массу материала на единицу площади принимают среднеарифметическое значение всех результатов испытаний.

5.2  Средства испытаний

Весы  с погрешностью взвешивания не более ±0,01 г.

5.3  Отбор и подготовка образцов

5.3.1  Отбор образцов

Для  проведения испытаний отбирают полный неповрежденный рулон материала в соответствии с ЕН 13416.

5.3.2  Подготовка образцов

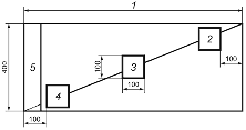
От  отобранного рулона по всей ширине полотна отрезают полосу материала длиной не менее 0,4 м. Из полосы материала вырубают три круглых или квадратных образца площадью (10000±100) мм каждый. Образцы вырубают так, чтобы один из них был посередине полосы, а два других — расположены симметрично относительно первого вдоль линии, соединяющей по диагонали два противоположных угла полосы, при этом расстояние между внешним краем образца и краем полотна должно быть 100 мм. Не допускается вырубать образцы на участке кромки.

Схема  вырубки квадратных образцов представлена на рисунке 1.

1 — ширина полотна материала; 2, 3, 4 — образцы; 5 — кромка

Рисунок 1 — Схема вырубки квадратных образцов

5.3.3  Кондиционирование образцов

Образцы  перед взвешиванием выдерживают не менее 20 ч при температуре (23±2) °С и относительной влажности (50±5)%.

5.4  Проведение испытания

Взвешивают  каждый образец и записывают результат, округленный до 0,1 г.

5.5  Обработка результатов испытаний

5.5.1  Результаты определения массы материала на единицу площади

Массу  материала на единицу площади , кг/м, вычисляют по формуле

,

где — масса первого образца, г;

       — масса второго образца, г;

       — масса третьего образца, г.

5.5.2  Точность метода

Настоящий  стандарт не содержит данных о точности метода, однако предполагается, что погрешность определения массы материала на единицу площади не должна превышать ±0,01 кг/м.

     

     6 Отчет об испытаниях

Отчет  об испытаниях должен содержать:

a)  данные, необходимые для идентификации испытуемого материала;

b)  ссылку на настоящий стандарт и отклонения от его требований;

c)  информацию об отборе образцов и подготовке к испытаниям в соответствии с 4.3 и 5.3;

d)  результаты испытаний в соответствии с 4.5 и 5.5;

e)  дату проведения испытаний.

Приложение А

(справочное)

     

Сведения о соответствии национального стандарта Российской Федерации ссылочному европейскому стандарту


Таблица А.1



Обозначение ссылочного европейского стандарта


Обозначение и наименование соответствующего национального стандарта


ЕН 13416:2001


ГОСТ Р ЕН 13416-2008 Материалы кровельные и гидроизоляционные гибкие битумосодержащие и полимерные (термопластичные или эластомерные). Правила отбора образцов




Электронный текст документа

подготовлен ЗАО "Кодекс" и сверен по:

официальное издание

М.: Стандартинформ, 2010

Предоставлено компанией .