ГОСТ 18048-80 от 1982-01-01 Кабины санитарно-технические железобетонные Технические условия

Автор: | 17.02.2015

ГОСТ 18048-80

Группа Ж33


МЕЖГОСУДАРСТВЕННЫЙ СТАНДАРТ



КАБИНЫ САНИТАРНО-ТЕХНИЧЕСКИЕ ЖЕЛЕЗОБЕТОННЫЕ

Технические условия

Reinforced concrete sanitary cabins.

Specifications


ОКП 58 9720

Дата введения 1982-01-01


ИНФОРМАЦИОННЫЕ ДАННЫЕ

1.  РАЗРАБОТАН И ВНЕСЕН Государственным комитетом по гражданскому строительству и архитектре при Госстрое СССР

РАЗРАБОТЧИКИ

А.А.Шеренцис,  канд. техн. наук (руководитель темы); А.А.Тучнин, канд. техн. наук; С.И.Белянский, канд. техн. наук; М.Ф.Евсеева; С.А.Каган, канд. техн. наук; А.И.Мокеев; В.И.Пименова; В.И.Деньщиков

2.  УТВЕРЖДЕН И ВВЕДЕН В ДЕЙСТВИЕ Постановлением Государственного комитета СССР по делам строительства от 22.04.80 N 54


3.  ВЗАМЕН ГОСТ 18048-72

4.  ССЫЛОЧНЫЕ НОРМАТИВНО-ТЕХНИЧЕСКИЕ ДОКУМЕНТЫ



Обозначение НТД, на который дана ссылка


Номер пункта


ГОСТ 380-94


2.8.5


ГОСТ 475-78


2.13.6


ГОСТ 1811-97


2.13.1


ГОСТ 3262-75


2.13.4


ГОСТ 4598-86


2.12.1


ГОСТ 5781-82


2.8.3, 2.8.4


ГОСТ 6141-91


2.12.1


ГОСТ 6787-90


2.12.1


ГОСТ 6942-98


2.13.4


ГОСТ 7396.0-89


2.13.1


ГОСТ 7396.1-89


2.13.1


ГОСТ 8292-85


2.12.1


ГОСТ 8943-75


2.13.4


ГОСТ 9590-76


2.12.1


ГОСТ 10060.0-95 — 10060.4-95


5.4


ГОСТ 10180-90


5.3


ГОСТ 10503-71


2.12.1


ГОСТ 10922-90


2.8.2, 5.5


ГОСТ 13015.0-83


2.7, 2.8.6, 2.9.6, 2.10.1, 5.6


ГОСТ 13015.1-81


4.1


ГОСТ 13015.2-81


6.1


ГОСТ 13015.4-84


6.3


ГОСТ 13448-82


2.12.2


ГОСТ 17624-87


5.3


ГОСТ 17625-83


5.10


ГОСТ 18105-86


2.6.1, 2.7, 5.3


ГОСТ 18297-96


2.13.1


ГОСТ 19281-89


2.8.5


ГОСТ 21485-94


2.13.1


ГОСТ 22689.0-89 — ГОСТ 22689.2-89


2.13.4


ГОСТ 22690-88


5.3


ГОСТ 22904-93


5.10


ГОСТ 23009-78


1.12


ГОСТ 23279-85


2.8.2


ГОСТ 25809-96


2.13.1


ГОСТ 26433.0-85


5.6


ГОСТ 28196-89


2.12.1


ГОСТ 30493-96


2.13.1


5.  ИЗДАНИЕ (ноябрь 1999 г.) с Изменениями N 1, 2, 3, утвержденными в декабре 1982 г., ноябре 1985 г., августе 1988 г. (ИУС 5-83, 3-86, 12-88)

Настоящий  стандарт распространяется на ненесущие железобетонные санитарно-технические кабины, состоящие из объемного блока и плитного элемента, изготовляемые из тяжелого и легкого бетона  и предназначенные для применения в жилых и общественных зданиях.

(Измененная  редакция, Изм. N 3).

1. ТИПЫ, ОСНОВНЫЕ ПАРАМЕТРЫ И РАЗМЕРЫ

1.1.  Кабины подразделяют на следующие типы:

1СК  — раздельный санитарный узел (ванная комната и уборная);

2СК  — то же, при длине уборной меньшей ширины кабины (в случае расположения вентиляционных каналов в пределах габаритов кабины);

3СК  — совмещенный санитарный узел (ванна, умывальник и унитаз) с входом в передней стене кабины;

4СК  — то же, с входом в боковой стене кабины;

5СК  — совмещенный санитарный узел (ванна, умывальник, унитаз и трап) с входом в передней стене;

6СК  — совмещенный санитарный узел (душевой поддон, умывальник, унитаз и трап) с входом в передней стене;

7СК  — уборная с рукомойником;

8СК  — то же, без рукомойника.

Кабины  всех типов изготовляют в двух вариантах исполнения:

правом  — при расположении в санитарных узлах ванны (душевого поддона) справа от унитаза, а в уборных — канализационного стояка справа от унитаза;

левом  — при расположении в санитарных узлах ванны (душевого поддона) слева от унитаза, а в уборных — канализационного стояка слева от унитаза.


1.2.  В кабинах предусматривают устройства, обеспечивающие вентиляцию воздуха. Вентиляцию организуют одним из следующих способов:

через  короб и патрубок, установленный на верхней грани кабины и соединенный с отверстием в вентиляционном блоке (панели);

через  вентиляционные отверстия в стенах кабин, соединенные с отверстиями в вентиляционных блоках (панелях);

через  вентиляционные отверстия в стенах кабин, соединенные с вентиляционным блоком, отформованным совместно с объемным блоком кабины.


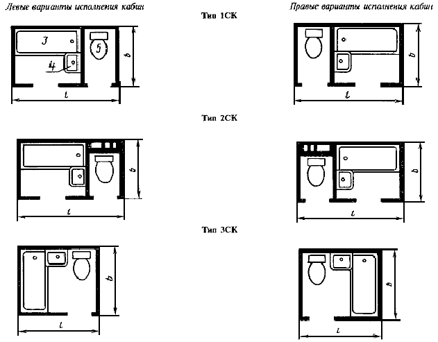
1.3.  Форма и основные размеры кабин должны соответствовать указанным на черт.1 и 2 и в табл.1.

ОБЩИЕ ВИДЫ КАБИН

ПЛАНЫ КАБИН

1 — объемный блок типа "колпак"; 2 — плита днища; 3 — ванна; 4 — умывальник; 5 — унитаз

На общих видах типов 1СК-6СК расположение дверных проемов показано условно

для кабин в правом варианте исполнения

Черт.1

ПЛАНЫ КАБИН

             

3 — ванна; 4 — умывальник; 5 — унитаз; 6 — трап; 7 — душевой поддон;

8 — канализационный стояк; 9 — рукомойник

Черт.2

Таблица 1

 







Типоразмер

кабины


Основные размеры кабины, мм




Справочная

масса


Область применения




Длина




Ширина


Высота


кабины, т






1СК24


2730


1600


2400


3,4


Жилые здания


1СК25






2540


3,6




1СК26






2640


3,7




1СК27








2740




3,8






2СК24






2400


3,3




2СК25






2540


3,5




2СК26






2640


3,6




2СК27












2740




3,7







3СК24


2080


1820


2400


2,6




3СК25






2540


2,8




3СК26






2640


2,9




3СК27










2740




3,1






4СК24






2400


2,6




4СК25






2540


2,8




4СК26






2640


2,9




4СК27






2740




3,1




5СК24


2140


1620


2400


2,9


Общественные здания


5СК25











2540




3,0






6СК24




1400


2400


2,5




6СК25












2540




2,7






7СК24


1100


1600


2400


1,5


Жилые здания


7СК25






2540


1,6




7СК26






2640


1,7




7СК27












2740




1,8






8СК24


940




2400


1,4




8СК25






2540


1,5




8СК26






2640


1,6




8СК27










2740




1,7






Примечание.  Справочная масса определена для кабин, имеющих стены толщиной 50 мм, плиты потолка — толщину 40 мм, плиты днища — толщину 60 мм и плотность железобетона 2500 кг/м, без учета массы конструкции пола, облицовочных материалов стен и оборудования.

           

Высоту  кабин принимают по табл.2 в зависимости от способа устройства вентиляции, высоты этажа и толщины железобетонной плиты перекрытия.

Таблица 2

Размеры, мм






Способ устройства вентиляции



Высота этажа


Толщина плиты перекрытия


Высота кабины


Через короб и патрубок, установленный на кабине и соединенный с отверстием в вентиляционном блоке или панели


2800


120


2400










160










220












3000


120


2400

2540












160
















220






Через вентиляционное отверстие в стене кабины, соединенное с отверстием в вентиляционном блоке или панели


2800


120


2640






220


2540






3000


220


2740


1.4.  Кабины изготовляют в виде объемного блока типа "колпак", устанавливаемого на ребра плиты днища кабины и соединяемого с ними закладными изделиями на сварке.

Примечание.  Допускалось изготовлять на действующем оборудовании до 1 января 1990 г. кабины других планировочных и конструктивных типов по рабочим чертежам серий типовых проектов жилых и общественных зданий.

(Измененная  редакция, Изм. N 2, 3).

1.5.  Номинальная толщина элементов кабины должна быть не менее, мм:     






стен (перегородок) и потолка





40




днища





50



1.6.  Кабины допускается изготовлять с технологическими уклонами глухих (без дверного проема) стен. Уклоны следует обеспечивать за счет утолщения стен в верхнем сечении на величину до 15 мм.

1.7.  Отверстия в стенах и потолке кабин выполняют сквозными или в виде ниш (местных углублений) глубиной не более половины толщины стенок, пробиваемых при сборке кабин.

1.8.  Элементы кабин армируют пространственными каркасами, собираемыми из сварных сеток, или плоскими сварными каркасами и сетками из стержневой арматуры классов А-I, A-II и арматурной проволоки периодического профиля класса Врп-I и Вр-I.

Для  закладных изделий кабин следует применять углеродистую сталь обыкновенного качества или низколегированную сталь.

(Измененная  редакция, Изм. N 1, 3).

1.9.  В кабинах предусматривают монтажные петли или другие приспособления для строповки.

1.10.  (Исключен, Изм. N 3).

1.11.  Для внутренних поверхностей кабины применяют следующие виды отделки:

нижней  части стен (на высоту не менее 1,6 м от пола) — окраску масляными красками, облицовку глазурованной керамической плиткой, декоративным бумажнослоистым пластиком или синтетическими пленками;

верхней  части стен и потолка — окраску клеевыми, масляными или водоэмульсионными красками;

пола  — облицовку керамической плиткой или другими материалами, используемыми для устройства полов в помещениях с мокрым режимом эксплуатации.

Глазурованную  керамическую плитку применяют в ванных комнатах раздельных санитарных узлов и в совмещенных санитарных узлах для облицовки стен, к которым примыкают санитарные приборы (кроме скрытых участков стен за ванной) на высоту не более 1,8 м и для устройства экрана перед ванной. Остальные стены этих помещений, а также стены уборных раздельных санитарных узлов по всему их периметру облицовывают керамической плиткой на высоту не более 0,15 м от пола.

       Допускается не облицовывать поверхность пола под ванной на ширину 300 мм вдоль стены, к которой ванна примыкает длинной стороной.

(Измененная  редакция, Изм. N 1, 3).

1.12.  Кабины обозначают марками в соответствии с ГОСТ 23009.

Марка  кабин состоит из буквенно-цифровых групп, разделенных дефисом. В первой группе содержатся обозначения типоразмера и варианта исполнения кабины, во второй — обозначение вида бетона (для легкого бетона). Особенности конструкции кабин, предназначенных для различной компоновки с кухонными мойками и для применения в зданиях различной этажности и степени благоустройства (наличие дополнительных закладных изделий, отверстий, проемов и т.п.) отражают в третьей буквенно-цифровой группе марки кабины.

Пример  условного обозначения (марки) кабины типа 1СК25л, длиной 2730 мм, шириной 1600 мм и высотой 2540 мм (типоразмера 1СК25), в левом варианте исполнения, из тяжелого бетона:

1СК25л-Т ГОСТ 18048-80

То  же, типа 3СК24пр-Л, длиной 2080 мм, шириной 1820 мм и высотой 2400 мм (типоразмера 3СК24), в правом варианте исполнения, из легкого бетона:

3СК24пр-Л ГОСТ 18048-80


 Примечание. Допускается принимать обозначения марок кабин в соответствии с рабочими чертежами кабин до их пересмотра.

       (Измененная редакция, Изм. N 3).

2. ТЕХНИЧЕСКИЕ ТРЕБОВАНИЯ

2.1.  Кабины следует изготовлять в соответствии с требованиями настоящего стандарта по проектной и технологической документациям, утвержденным в установленном порядке.

(Измененная  редакция, Изм. N 3).

2.2.  (Исключен, Изм. N 3).

2.3.  Кабины должны удовлетворять установленным при проектировании требованиям по прочности, жесткости и трещиностойкости.

(Измененная  редакция, Изм. N 3).

2.4.  Днища кабин (с конструкцией пола) должны быть водонепроницаемыми.

2.5.  Кабины всех типов следует поставлять с заводской внутренней отделкой, со смонтированными трубопроводами, с установленными оборудованием и приборами.

Допускается  по согласованию изготовителя с потребителем поставлять кабины с неполной внутренней отделкой стен и потолка, а также частично неустановленным оборудованием и приборами.

(Измененная  редакция, Изм. N 3).

2.6.  Бетон

2.6.1.  Фактическая прочность бетона кабин (в проектном возрасте и отпускная) должна соответствовать требуемой, назначаемой по ГОСТ 18105 в зависимости от класса или марки бетона по прочности на сжатие, указанным в рабочих чертежах, и от фактической однородности прочности бетона.

Класс  или марка бетона по прочности на сжатие должны быть не менее В12,5 или М150 для объемного блока и не менее В15 или М200 для плиты днища кабины.

(Измененная  редакция, Изм. N 1, 2, 3).

2.6.2.  Морозостойкость бетона кабин должна соответствовать марке по морозостойкости, установленной в проекте здания или указанной в заказе на изготовление кабин.

2.6.3.  Материалы, применяемые для приготовления бетона, должны обеспечивать выполнение технических требований, установленных настоящим стандартом.

2.6.2,  2.6.3. (Измененная редакция, Изм. N 3).

2.7.  Поставку кабин потребителю следует производить после достижения бетоном кабин требуемой отпускной прочности, назначаемой по ГОСТ 18105 в зависимости от значения нормируемой отпускной прочности и фактической однородности прочности бетона.

Значение  нормируемой отпускной прочности бетона кабин следует принимать равным 70% класса или марки бетона по прочности на сжатие. При поставке кабин в холодный период года допускается повышать значение нормируемой отпускной прочности бетона, но не более 80% класса или марки бетона по прочности на сжатие. Значение нормируемой отпускной прочности бетона принимают по проектной документации на конкретное здание в соответствии с требованиями ГОСТ 13015.0.

Поставку  кабин с отпускной прочностью бетона ниже прочности, соответствующей его классу или марке по прочности на сжатие, проводят при условии, если изготовитель гарантирует достижение бетоном кабин требуемой прочности в проектном возрасте, определяемой по результатам испытания контрольных образцов, изготовленных из бетонной смеси рабочего состава и хранившихся в условиях согласно ГОСТ 18105.

(Измененная  редакция, Изм. N 1, 2, 3).


2.8.  Арматурные и закладные изделия

2.8.1.  Форма и размеры арматурных и закладных изделий должны соответствовать указанным в рабочих чертежах.

2.8.2.  Сварные арматурные  и закладные изделия  должны удовлетворять требованиям ГОСТ 10922, а сварные сетки — требованиям ГОСТ 23279.

2.8.3.  Арматурные стали должны удовлетворять требованиям государственных стандартов или технических условий:

стержневая  арматура классов А-I и А-II — ГОСТ 5781;

арматурная  проволока периодического профиля класса Вр-I — ГОСТ 5781;

арматурная  проволока повышенной прочности класса Врп-I — НТД.

2.8-2.8.3.  (Измененная редакция, Изм. N 3).

2.8.4.  Для изготовления монтажных петель кабин должна применяться стержневая горячекатаная арматура гладкая класса А-I марок ВСт3пс2 и ВСт3сп2 или периодического профиля класса Ас-II марки 10ГТ по ГОСТ 5781.

Сталь  марки ВСт3пс2 не допускается применять для монтажных петель, предназначенных для подъема и монтажа кабин при температуре ниже минус 40 °С.

(Измененная  редакция, Изм. N 2, 3).

2.8.5.  Углеродистая сталь обыкновенного качества для закладных изделий должна удовлетворять требованиям ГОСТ 380, низколегированная сталь — ГОСТ 19281.

(Измененная  редакция, Изм. N 1, 3).

2.8.6.  Требования к защите от коррозии стальных закладных изделий — по ГОСТ 13015.0.

(Измененная  редакция, Изм. N 3).

2.9.  Точность изготовления кабин

2.9.1.  Отклонения фактических размеров кабин от номинальных, указанных в рабочих чертежах, не должны превышать, мм:






по длине и ширине кабины снаружи


±10







по высоте кабины снаружи





±12







по положению перегородки





±8







по размеру и расположению отверстий





±5







по размерам и расположению дверных проемов





±10







по расположению осей подводок к смесителю


±2



2.9.2.  Отклонение от прямолинейности профиля поверхности стен, пола и потолка кабин не должны превышать 5 мм на всю длину, ширину и высоту кабины.

2.9.1,  2.9.2. (Измененная редакция, Изм. N 3).

2.9.3.  (Исключен, Изм. N 3).

2.9.4.  Разность длин диагоналей наружных плоскостей кабин не должна превышать 10 мм.

2.9.5.  (Исключен, Изм. N 3).

2.9.6.   Требования к толщине защитного слоя бетона, а также предельные отклонения толщины защитного слоя бетона до арматуры — по ГОСТ 13015.0.

(Измененная  редакция, Изм. N 3).

2.10.  Качество наружных поверхностей и внешний вид кабин

2.10.1.  Устанавливают следующие категории бетонных поверхностей кабин:

А2  — лицевой, предназначаемой под окраску;

А4  — лицевой, предназначаемой под отделку обоями или другими рулонными материалами;

А7  — нелицевой, невидимой в условиях эксплуатации.

Требования  к качеству поверхностей и внешнему виду кабин (в том числе требования к допустимой ширине раскрытия технологических трещин) — по ГОСТ 13015.0.

(Измененная  редакция, Изм. N 2, 3).

2.10.2,  2.10.3. (Исключены, Изм. N 2).

2.10.4.  Открытые поверхности стальных закладных изделий, выпуски трубопроводов и монтажные петли должны быть очищены от наплывов раствора и шпаклевки.

(Измененная  редакция, Изм. N 3).

2.11.  Вид и качество внутренней отделки кабин

2.11.1.  Вид и качество внутренней отделки потолка и стен кабин должны соответствовать указанным в проекте здания и установленным эталонам отделки, а также удовлетворять следующим требованиям:

окраска  должна быть улучшенного вида; качество окрашенных поверхностей должно удовлетворять требованиям СНиП 3.04.01;

толщина  швов между керамическими плитками должна быть 2,5 мм;

отклонения  поверхности облицованных стен кабин от прямолинейности, отклонения швов от горизонтали и вертикали, а также отклонения толщины швов от номинального размера не должны превышать величин, указанных в табл.5.

Таблица 5*

_______________

*  Табл.3. (Исключена, Изм. N 3).

Табл.4.  (Исключена, Изм. N 2).






 


Предельное отклонение, мм




Характеристика облицованной поверхности



от прямолинейности на всю высоту (ширину) стен


расположения швов от вертикали и горизонтали на

1 м


расположения швов от вертикали и горизонтали на всю высоту (длину)

по толщине

швов


Облицовка керамическими изделиями



3


1,5


3


±0,5


Облицовка полистирольными плитками



3


2


3


швы  между керамическими плитками должны быть тщательно заполнены цементным раствором.

В  кабинах, которые поставляют с неполной внутренней отделкой стен и потолков (см. п.2.5), соответствующие поверхности должны быть подготовлены под окончательную (вторую) окраску или под облицовку (оклейку) плиточными или рулонными материалами (категории А4 или А5).

(Измененная  редакция, Изм. N 3).

2.11.2.  Отделку поверхности стены на участке ниже примыкающего длинного борта ванны допускается не выполнять.

2.11.3.  На облицованной поверхности пола перепад между плитками по высоте не должен превышать 1 мм. Допускается перепад между плитками до 2 мм по периметру пола кабины вдоль стен на ширину до 200 мм, а также под ванной и в других малодоступных местах.

(Измененная  редакция, Изм. N 3).

2.11.4.  Окраска трубопроводов горячего и холодного водоснабжения, а также полотенцесушителя масляной краской должна быть улучшенного вида.

2.11.5.  На отделанных поверхностях стен, потолка и пола не должно быть следов раствора, шпаклевки, мастики, а также пятен.

2.11.6.  Щели между стенами кабины и примыкающими к ним краями ванны должны быть заделаны с уклоном в сторону ванны и иметь водозащитное покрытие.

2.12.  Изделия и материалы для отделки внутренних поверхностей кабин

2.12.1.  Изделия и материалы, применяемые для отделки внутренних поверхностей кабин, должны соответствовать требованиям следующих стандартов:

краски  масляные — ГОСТ 10503, ГОСТ 8292;

краски  водоэмульсионные — ГОСТ 28196;

плитки  керамические для внутренней облицовки стен — ГОСТ 6141;

плитки  керамические для полов — ГОСТ 6787;

пластик  бумажнослоистый декоративный — ГОСТ 9590;

плиты  древесноволокнистые сверхтвердые с эмалевым покрытием по ГОСТ 4598.

(Измененная  редакция, Изм. N 3).

2.12.2.  В кабинах должны быть установлены вентиляционные решетки по ГОСТ 13448.

2.12.3.  (Исключен, Изм. N 3).

2.13.  Оборудование и приборы кабин

2.13.1.  Санитарно-техническое и электротехническое оборудование и приборы, устанавливаемые в кабинах, должны соответствовать требованиям государственных стандартов или НТД:

ванны  чугунные эмалированные — ГОСТ 18297;

поддоны  душевые чугунные эмалированные — ГОСТ 18297;

умывальники  — ГОСТ 30493;

унитазы  — ГОСТ 30493;

бачки  смывные и арматура к ним — ГОСТ 21485, ГОСТ 21485.4, ГОСТ 21485.5;

трапы  чугунные эмалированные — ГОСТ 1811;

рукомойники  — НТД;

смесители  водоразборные — ГОСТ 25809;

вентили  запорные муфтовые;

полотенцесушители  латунные — НТД (допускается применение полотенцесушителей из газопроводных труб);

патроны  резьбовые для электрических ламп;

розетки  штепсельные двухполюсные — ГОСТ 7396.0, 7396.1.

Допускается  применять оборудование и приборы других типов, выпускаемые промышленностью по стандартам и техническим условиям.

(Измененная  редакция, Изм. N 2).

2.13.2.  Корпус ванны должен быть соединен уравнителем электрических потенциалов (электропроводником) с трубами водопровода.

2.13.3.  Установка ванн, душевых поддонов, умывальников, рукомойников, унитазов и смывных бачков с поврежденной эмалью и глазурью не допускается.

2.13.4.  Узлы трубопроводов горячей и холодной воды должны быть собраны из стальных водогазопроводных оцинкованных труб по ГОСТ 3262 и соединительных фасонных частей из ковкого чугуна по ГОСТ 8943.

Узлы  системы канализации должны быть собраны из чугунных труб и соединительных частей к ним по ГОСТ 6942 или пластмассовых труб и соединительных частей к ним по ГОСТ 22689.0 — ГОСТ 22689.2.

2.13.5.  Смонтированные трубопроводы холодного и горячего водоснабжения с установленной на них запорной арматурой, а также канализационные трубопроводы без установленных приборов должны быть подвергнуты гидравлическому испытанию до выполнения отделочных работ.

2.13.6.  Двери кабин должны удовлетворять требованиям ГОСТ 475 и быть укомплектованы приборами в соответствии со спецификацией в проекте.

Между  полотном двери и полом кабины должен быть зазор для вентиляции.

2.13.7.  (Исключен, Изм. N 3).

3. КОМПЛЕКТНОСТЬ

3.1.  В зависимости от назначения в кабине должны быть установлены присоединенные к трубопроводам ванна, душевой поддон, умывальник, унитаз и смывной бачок, рукомойник, трап, запорная и регулирующая арматура, а также электропатрон, вентиляционная решетка, двери, дверные пружинные защелки, завертки и задвижки.

3.2.Отдельные  предметы санитарно-технического и электротехнического оборудования, не указанные в п.3.1, в том числе смесители, детали междуэтажного соединения трубопроводов, дверные ручки, электровыключатели, штепсельные розетки и детали вентиляции могут устанавливаться на предприятии-изготовителе кабин или поставляться в виде комплектующих деталей.

3.3.  Допускается по согласованию изготовителя с потребителем кабин включать отдельные виды приборов, перечисленные в п.3.1, в состав комплектующих деталей.

(Измененная  редакция, Изм. N 3).

3.4.  Комплектующие детали должны быть тщательно подогнаны для установки их в кабины на стройплощадке, упакованы и отгружены вместе с кабиной по приложенной спецификации.

4. ПРАВИЛА ПРИЕМКИ

4.1.  Приемку кабин следует проводить партиями в соответствии с требованиями ГОСТ 13015.1 и настоящего стандарта.

(Измененная  редакция, Изм. N 1).

4.2.  Приемку кабин по показателю морозостойкости бетона, а также по положению перегородки, размерам и положению дверных проемов следует проводить по результатам периодических испытаний.

Испытания  кабин нагружением для контроля их прочности, жесткости и трещиностойкости не проводят.

(Измененная  редакция, Изм. N 3).

4.3.  Приемку кабин по показателям прочности бетона (классу или марке бетона по прочности на сжатие и отпускной прочности), соответствия арматурных и закладных изделий рабочим чертежам, прочности сварных соединений, точности геометрических параметров, толщины защитного слоя бетона до арматуры, категории бетонной поверхности, ширины раскрытия трещин, соответствия вида и качества внутренней отделки эталону, а также водонепроницаемости днища кабин следует проводить по результатам приемо-сдаточных испытаний и контроля.

(Измененная  редакция, Изм. N 1).

4.3.1,  4.3.2. (Исключены, Изм. N 3).

5. МЕТОДЫ КОНТРОЛЯ И ИСПЫТАНИЙ

5.1.  (Исключен, Изм. N 3).

5.2.  Водонепроницаемость днища кабин проверяют следующим образом: пол кабины заливают водой на высоту 20 мм и выдерживают в течение 6 ч. За время испытаний не должно быть просачивания воды через днище.

5.3.  Прочность бетона на сжатие следует определять по ГОСТ 10180 на серии образцов, изготовленных из бетонной смеси рабочего состава и хранившихся в условиях, установленных ГОСТ 18105.

Допускается  фактическую отпускную прочность бетона на сжатие определять неразрушающими методами по ГОСТ 17624, ГОСТ 22690.

(Измененная  редакция, Изм. N 2, 3).

5.4.  Морозостойкость бетона следует определять по ГОСТ 10060.0 — ГОСТ 10060.4.

5.5.  Методы контроля и испытаний арматурных изделий и закладных деталей — по ГОСТ 10922.

5.6.  Размеры, отклонения от прямолинейности и равенства диагоналей поверхностей кабин, ширину раскрытия технологических трещин, размеры раковин, наплывов и околов бетона наружных поверхностей кабин следует проверять методами, установленными ГОСТ 26433.0 и ГОСТ 13015.0.

(Измененная  редакция, Изм. N 3).

5.7.  Гидравлическое испытание смонтированных трубопроводов холодного и горячего водоснабжения с установленной на них запорной арматурой следует проводить путем выдерживания трубопроводов под давлением, равным 1 МПа (~ 10 кгс/см) в течение 2 мин. Трубопроводы считают выдержавшими это испытание, если к моменту его окончания не будет обнаружено падение давления.

5.8.  Гидравлическое испытание смонтированных трубопроводов канализации (стояков и отводных труб от санитарных приборов) следует проводить путем выдерживания их под давлением воды, налитой до верха стояка при закрытых пробками выпускных отверстиях. Трубопроводы считают выдержавшими это испытание, если в течение 10 мин не обнаружено просачивание воды. После испытания вода из трубопроводов должна быть удалена.

5.9.  После гидравлических испытаний открытые концы стояков водопровода, канализации и подводок к мойке должны быть закрыты заглушками.

5.10.  Размеры и положение арматурных изделий, а также толщину защитного слоя бетона до арматуры следует определять по ГОСТ 17625 или ГОСТ 22904. При отсутствии необходимых приборов допускается вырубка борозд и обнажение арматуры кабин с последующей заделкой борозд.

(Введен  дополнительно, Изм. N 3).

6. МАРКИРОВКА, ХРАНЕНИЕ И ТРАНСПОРТИРОВАНИЕ

6.1.  Маркировка кабин — по ГОСТ 13015.2. Маркировочные надписи и знаки следует наносить на наружной нелицевой поверхности кабин.

6.2.  В случаях, предусмотренных в рабочих чертежах, на кабинах должны быть нанесены знаки, определяющие места опирания их при хранении и транспортировании.

6.1,  6.2. (Измененная редакция, Изм. N 1).

6.3.  Транспортировать и хранить кабины следует в соответствии с требованиями ГОСТ 13015.4 и настоящего стандарта.

6.4.  Кабины должны храниться на специально оборудованных складах в рабочем положении установленными на прокладки, уложенные на плотное, тщательно выровненное основание. Выступающие вниз детали канализационных труб должны находиться на расстоянии не менее 20 мм от поверхности этого основания. Прокладки должны располагаться в местах, указанных в рабочих чертежах кабин.

6.5.  Для защиты от атмосферных осадков кабины должны быть покрыты пергамином, поливинилхлоридной пленкой или другими гидроизоляционными материалами.

Гидроизоляционный  материал должен быть прикреплен к инвентарным деревянным рамкам, устанавливаемым на кабины, или приклеен к верхней части кабины.

При  поставке кабин с неполной внутренней отделкой (п.2.5) допускается по согласованию изготовителя с потребителем для защиты от атмосферных осадков покрывать только отверстия в потолке кабины.

6.3-6.5.  (Измененная редакция, Изм. N 3).

6.6.  (Исключен, Изм. N 3).

6.7.  Перевозку кабин следует производить только на специально оборудованных транспортных средствах.

Текст документа сверен по:

официальное издание

М.: ИПК Издательство стандартов, 2000

Предоставлено компанией .