ГОСТ 23899-79 Колонны железобетонные под параболические лотки Технические условия

Автор: | 17.02.2015

ГОСТ 23899-79

Группа Ж33


ГОСУДАРСТВЕННЫЙ СТАНДАРТ СОЮЗА ССР


КОЛОННЫ ЖЕЛЕЗОБЕТОННЫЕ

ПОД ПАРАБОЛИЧЕСКИЕ ЛОТКИ

Технические условия

Column reinforced concrete for parabolic

shoots. Technical condition

     

ОКП 58212

Дата введения 1981-01-01


РАЗРАБОТАН  Министерством мелиорации и водного хозяйства СССР

ИСПОЛНИТЕЛИ

Ю.А.Тевелев  (руководитель темы), Г.А.Ивянский, Н.Н.Светликова

ВНЕСЕН  Министерством мелиорации и водного хозяйства СССР

Зам.министра  Б.Г.Штепа

УТВЕРЖДЕН  И ВВЕДЕН В ДЕЙСТВИЕ Постановлением Государственного комитета СССР по делам строительства от 12 ноября 1979 г. N 216

Настоящий  стандарт распространяется на железобетонные колонны, изготовляемые из тяжелого бетона и предназначенные для опирания параболических лотков оросительных систем с расходом воды до 5 м/с, сооружаемых во всех климатических районах страны с сейсмичностью до 8 баллов включительно.

1. ОСНОВНЫЕ ПАРАМЕТРЫ И РАЗМЕРЫ

1.1.  Колонны железобетонные под параболические лотки подразделяют на два типа:

СК  — свая-колонна;

К  — стойка-колонна, заделываемая в фундамент стаканного типа.


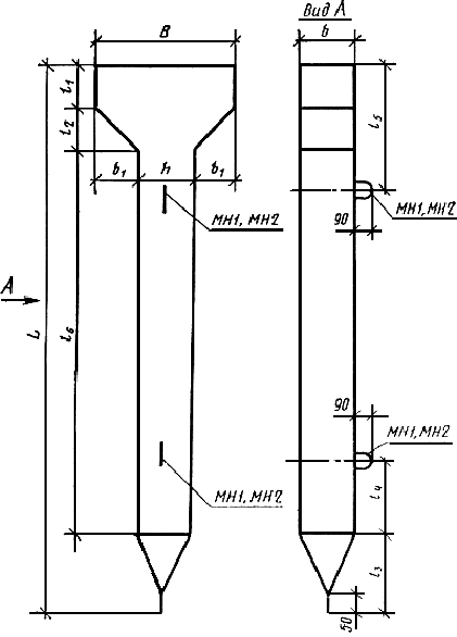
1.2.  Форма, размеры колонн и расположение монтажных петель должны соответствовать указанным на черт.1 и 2 и в табл.1.

Колонна типа СК

Черт.1


Колонна типа К

Черт.2



Таблица 1

Параметры колонн под лотки














                                                                                                        Размеры в мм

     


Типораз-

меры


Глубина

напол-

нения

лотка


Ши-

рина

                   

 

Вы-

со-

та


Дли-

на


Длина

острия


 

Наголовник


Привязка

закладных

 деталей


Cправоч-

ная

масса,

кг

























 



Шири-

на


Высо-

та


Ширина

скосов


Высота

скосов







CК 40.2.5



400-800



200



200


4000



300



450






125



125


600


500


410


CК 60.2.5








6000







200






900


900


710


CК 40.3.7



1000



250



250


4000



375



700






225



225


600


425


673


CК 60.3.7

     







6000












900


825


985


 К 8.2.5











750

















400


150


78


 К 13.2.5





150


200


1250











125


125


400


250


115


 К 18.2.5



400-800






1750




450









400


350


150


 К 28.2.5











2750









150








410


550


365


 К 38.2.5











3750











100


160


560


750


490


 К 48.2.5





200



250


4750














710


950


615


 К 12.2.7



1000








1150






700






225



225


400


230


203


 К 17.2.7








1650












440


330


265


1.3.  Марки колонн под лотки обозначаются в соответствии с ГОСТ 23009-78.


1.4.  Колонны в зависимости от длины опирающихся на них лотков подразделяют по несущей способности на две группы:

1  — колонны под лотки длиной 6 м;

2  — колонны под лотки длиной 8 м.

Пример  условного обозначения колонны типа СК, длиной 4000 мм, шириной 200 мм и шириной наголовника 450 мм, 1-й по несущей способности (под лотки длиной 6 м):

СК 40.2.5-1 ГОСТ 23899-79

1.5.  При соответствующем технико-экономическом обосновании допускается изготовлять колонны с технологическим уклоном двух противоположных сторон поперечного сечения, не превышающим 1:15, без изменения площади поперечного сечения. При этом защитный слой бетона должен быть не менее 30 мм.

Поперечное  сечение основного каркаса колонн может иметь трапецеидальную форму, каркасы в этом случае следует выполнять по специальным чертежам, утвержденным в установленном порядке.


1.6.  Технические показатели и армирование колонн следует принимать по табл.2 и обязательному приложению 1 к настоящему стандарту.

Таблица 2

Технические показатели колонн под лотки











Типораз-

мер


Марка бетона


Расход мате-

риалов


Типораз-

мер


Марка бетона


Расход мате-

териала







по проч-

ности

на сжа-

тие


по во-

донеп-

роница-

емости


Бетон,

м



Сталь,

кг








по проч-

ности

на сжа-

тие


по во-

донеп-

роница-

емости


Бетон,

м





Сталь,

кг



        

СК 40.2.5

         

        

        

        

        

       

       

       

       

      

 0,164

      

19

——

23





К 18.2.5













0,060


9,1

——

10,9


         

СК 60.2.5

         












0,244


50

——

61



К 28.2.5













0,146


14,8

——

18,2


         

СК 40.3.7

         

        

        

        

  М 200  

       

       

       

  В 2   

      

 0,260

      

24

——

29



К 38.2.5





М 200





В 2



0,196


23,8

——

29,4


         

СК 60.3.7

         

        

        

        

        

       

       

       

       

      

 0,394

      

54

——

64



К 48.2.5













0,246


36,5

——

44,3


         

 К 8.2.5

         

        

        

        

        

       

       

       

       

      

 0,031

      

6,2

——

6,9



К 12.2.7













0,081


9,5

——

10,2


         

К 13.2.5

         

        

        

        

       

       

       

      

 0,046

      

7,4

——

8,8



К 17.2.7











0,106


11,1

——

12,2


   

  Примечание. В числителе дана масса арматуры колонн под лотки длиной 6 м, а в знаменателе — под лотки длиной 8 м.

2. ТЕХНИЧЕСКИЕ ТРЕБОВАНИЯ

2.1.  Колонны под лотки должны изготовляться в соответствии с требованиями настоящего стандарта.


2.2.  Бетон


2.2.1.  Материалы, применяемые для приготовления бетона, должны обеспечивать выполнение технических требований, установленных настоящим стандартом, и соответствовать действующим стандартам или техническим условиям на эти материалы.


2.2.2.  Колонны под лотки должны изготовляться из тяжелого бетона марки не ниже М 200.


2.2.3.  Водопоглощение бетона колонн должно быть не более 5%.


2.2.4.  Марка бетона колонн по водонепроницаемости должна быть В 2.


2.2.5.  Марка бетона колонн по морозостойкости должна приниматься в соответствии с требованиями главы СНиП II-21-75 в зависимости от климатических условий района строительства, указанного в заказе на изготовление колонн, но не менее Мрз 100.


2.2.6.  Поставка колонн потребителю должна производиться после достижения бетоном отпускной прочности, назначаемой с учетом технологии их изготовления, условий транспортирования и монтажа, срока загружения колонн нагрузкой, а также с учетом возможности дальнейшего нарастания прочности бетона в конструкции в зависимости от климатических условий района строительства и времени года.

Величина  отпускной прочности бетона должна быть не менее:

свай-колонн  -100% проектной марки бетона по прочности на сжатие;

стоек-колонн  -70% проектной марки бетона по прочности на сжатие.

Назначение  и согласование величины отпускной прочности бетона — по ГОСТ 13015-75.


2.2.7.  Бетон, а также материалы для приготовления бетона колонн, предназначенных для работы в условиях воздействия агрессивной среды, должны удовлетворять требованиям главы СНиП II-28-73.


2.3.  Арматура и арматурные изделия


2.3.1.  Для армирования колонн должна применяться арматурная сталь следующих видов и классов:

рабочая  арматура — горячекатаная арматурная сталь периодического профиля класса А-III по ГОСТ 5781-75 и ГОСТ 5.1459-72;

конструктивная  арматура — горячекатаная арматурная гладкая сталь класса А-I по ГОСТ 5781-75.


2.3.2.  Сварные арматурные изделия должны удовлетворять требованиям ГОСТ 10922-75.


2.3.3.  Монтажные петли должны изготавливаться из стержневой горячекатаной гладкой арматуры класса А-I марок ВСт3пс2, ВСт3сп2 по ГОСТ 5781-75.

Сталь  марки ВСт3пс2 не допускается применять для монтажных петель, предназначенных для подъема и монтажа колонн при температуре ниже минус 40 °С.


2.3.4.  Армирование колонн под лотки должно соответствовать обязательному приложению 1.


2.3.5.  Толщина защитного слоя бетона для рабочей арматуры должна быть не менее 30 мм.


2.4.  Изготовление колонн


2.4.1.  Колонны следует изготовлять в стальных формах, удовлетворяющих требованиям ГОСТ 18886-73.


2.4.2.  Проектное положение арматурных изделий и толщину защитного слоя бетона следует фиксировать прокладками из плотного цементно-песчаного раствора или пластмассовыми фиксаторами.

Применение  стальных фиксаторов не допускается.


2.4.3.  Отклонения от проектных размеров колонн, положения арматуры, расположения подъемных петель, а также от проектной толщины защитного слоя бетона не должны превышать в мм:

    



по длине призматической части и общей длине сваи-колонны


±30


по длине стойки-колонны


±10


по размерам поперечного сечения


±5


по длине острия сваи-колонны


±30


по смещению острия сваи-колонны от центра поперечного сечения


10


по расстоянию от центра подъемных петель до конца колонн


±50


по толщине защитного слоя бетона


±5


по шагу спирали и хомутов


±10


по смещению продольной арматуры


±5


по смещению сеток в голове колонны


±10


2.4.4.  Отклонения фактической массы колонн при отпуске потребителю не должны превышать ±7% номинальной массы колонн.


2.4.5.  Внешний вид и качество поверхностей колонн под лотки должны удовлетворять следующим требованиям:

не  допускаются на поверхности колонн раковины диаметром и глубиной более 5 мм;

не  допускаются на бетонных поверхностях местные наплывы и впадины высотой и глубиной более 5 мм;

не  допускаются местные околы бетона на углах глубиной более 10 мм и общей длиной более 50 мм на 1 пог.м;

не  допускаются околы бетона и раковины в торце;

не  допускаются трещины, за исключением поверхностных усадочных шириной более 0,1 мм.


2.4.6.  Монтажные петли должны быть очищены от наплывов бетона.


3. ПРАВИЛА ПРИЕМКИ

3.1.  Колонны под лотки должны быть приняты техническим контролем предприятия-изготовителя.


3.2.  Результаты приемочного контроля и испытаний должны быть записаны в журнале ОТК или заводской лаборатории.


3.3.  Приемка колонн должна производиться партиями. Размер партии устанавливается в количестве не более 200 колонн одного типоразмера, изготовленных предприятием по одной технологии, из материалов одного вида и качества в течение не более одних суток.

Допускается  определять объем партии по соглашению предприятия-изготовителя с потребителем, а также поставлять изделия, отобранные от разных партий.


3.4.  Предъявляемую к приемке партию ОТК подвергают контрольной проверке, при этом:

для  контрольной проверки размеров колонн и качества их рабочих поверхностей отбирают контрольные образцы в количестве 5% от партии, но не менее двух колонн;

для  оценки прочности и трещиностойкости колонн, расположения арматуры и толщины защитного слоя бетона — две колонны от партии.


3.5.  Если при проверке отобранных образцов окажется хотя бы одна колонна, не соответствующая требованиям настоящего стандарта, следует отобрать удвоенное количество колонн от той же партии и произвести повторную проверку.

Если  при повторной проверке окажется хотя бы одна колонна, не удовлетворяющая требованиям настоящего стандарта, то данная партия колонн подлежит приемке поштучно.


3.6.  Морозостойкость и водонепроницаемость бетона следует определять не реже одного раза в шесть месяцев при серийном изготовлении колонн, а также при освоении производства, изменении технологии и вида применяемых материалов.


3.7.  Потребитель имеет право производить выборочный или поштучный приемочный контроль колонн под лотки на заводе-изготовителе, соблюдая при этом правила приемки, установленные настоящим стандартом.


4. МЕТОДЫ ИСПЫТАНИЙ

4.1.  Размеры и непрямолинейность колонн, положение закладных изделий, масса, толщина защитного слоя бетона до арматуры, а также качество поверхностей и внешний вид проверяются по ГОСТ 13015-75.


4.2.  Марка бетона по водонепроницаемости должна определяться в соответствии со СНиП II-21-75 и ГОСТ 19426-74.

При  отсутствии оборудования, предусмотренного указанными нормативными документами, допускается определять марку бетона по водонепроницаемости в соответствии с требованиями ГОСТ 12730.5-78.


4.3.  Испытание сварных арматурных соединений и оценка их прочности и качества изготовления производятся по ГОСТ 10922-75.


4.4.  Прочность бетона на сжатие определяется по ГОСТ 10180-78. Допускается определять фактическую прочность бетона в опорах ультразвуковым методом по ГОСТ 17624-72.


4.5.  Контроль и оценку проектной марки бетона по прочности на сжатие, а также отпускной прочности бетона следует производить по ГОСТ 18165-72 или ГОСТ 21217-75 с учетом однородности прочности бетона.


4.6.  Марка бетона по морозостойкости должна контролироваться в соответствии с ГОСТ 10060-76.


4.7.  Испытание колонн на прочность проводят по схеме, указанной на черт.3.

           

         

1 — неподвижная опора; 2 — подвижная опора; 3 — испытываемая колонна;

4 — металлические прокладки толщиной 10, длиной 250 и шириной 100 мм

 ( и — см. обязательное приложение 2).

Черт.3


4.8.  Нагрузка Р прикладывается ступенями по 0,1 от разрушающей. После каждого этапа делается выдержка 10 мин. Разрушение должно произойти при величине нагрузки не менее указанной в обязательном приложении 2.


5. МАРКИРОВКА, ТРАНСПОРТИРОВАНИЕ И ХРАНЕНИЕ

5.1.  На боковой поверхности колонны на расстоянии 50 см от торца с наголовником или на торце должна быть нанесена несмываемой краской следующая маркировка:

товарный  знак предприятия-изготовителя или его краткое наименование;

марка  колонны под лотки;

дата  изготовления;

штамп  ОТК;

отпускная  масса колонн в кг — для конструкций, масса которых превышает 500 кг.


5.2.  Колонны должны храниться по маркам в штабелях горизонтальными рядами наголовниками в одну сторону.


5.3.  Высота штабеля должна быть не более 2,5 м.


5.4.  Проходы между штабелями должны быть не менее 1 м.


5.5.  Между горизонтальными рядами колонн (складируемых или транспортируемых) должны быть уложены деревянные прокладки высотой 250, шириной 60 и толщиной 110 мм, расположенные рядом с монтажными петлями колонн.

Подкладки  под нижние ряды колонн должны укладываться по плотному, тщательно выровненному основанию.


5.6.  Прокладки между всеми вышележащими рядами колонн должны быть расположены по вертикали одна над другой.


5.7.  Перетаскивание колонн волоком запрещается.


5.8.  При транспортировании колонн должны соблюдаться меры, обеспечивающие предохранение их от ударов и механических повреждений.


5.9.  Все операции, связанные с погрузкой и разгрузкой колонн, а также с переводом их из горизонтального положения в вертикальное, как и кантовка их, должны производиться плавно без рывков и ударов с тем, чтобы исключить возможность повреждения колонн.


5.10.  Погрузка и крепление колонн при перевозке их на железнодорожных платформах должны производиться в соответствии с действующими инструкциями МПС по перевозке грузов.


5.11.  Количество одновременно транспортируемых колонн должно определяться их массой и габаритами.


5.12.  Подъем колонн в вертикальное положение следует осуществлять стропом, закрепленным у наголовника или у верхней подъемной петли.

Строповка  колонн при переводе их из горизонтального положения в вертикальное запрещается.


5.13.  Изготовитель должен сопровождать каждую принятую техническим контролем партию, часть партии или группу изделий из разных партий паспортом, в котором указывают:

наименование  и адрес предприятия-изготовителя;


номер  и дату выдачи паспорта;

номер  партии;

марки  колонн с указанием количества изделий каждой марки;

дату  изготовления колонн;

проектную  марку бетона по прочности на сжатие;

отпускную  прочность бетона колонн в процентах от проектной марки;

марки  бетона по морозостойкости и водонепроницаемости;

водопоглощение  бетона;

результаты  испытаний колонн на разрушение;

обозначение  настоящего стандарта.

Паспорт  должен быть подписан лицом, ответственным за технический контроль предприятия-изготовителя.

6. ГАРАНТИИ ПОСТАВЩИКА

6.1.  Завод-изготовитель гарантирует соответствие поставляемых изделий требованиям настоящего стандарта при соблюдении потребителем правил транспортировки, условий применения и хранения изделий, установленных настоящим стандартом.


6.2.  Некачественные колонны завод-изготовитель обязан заменить в сроки, согласованные с потребителем.

Приложение 1  

Обязательное

Армирование колонн типа СК

Черт.1


Армирование колонн типа К

Черт.2

Таблица 1

Спецификация арматурных изделий и закладных деталей

на одну колонну под лотки








Марка изделия

колонны


Арматурные изделия

и закладные детали



Марка колонны


Арматурные изделия

и закладные детали


               

Марка


Количество




Марка


Количество


 СК 40.2.5-1   

               

               

               

               

  С1   

  С31  

  С6   

  СП1  

  МН1

      

     1      

     3      

     1      

     1      

     2      

 СК 60.2.5-1  

              

              

              

              

  С1   

  С31  

  С7   

  СП1  

  МН1  

     1      

     3      

     1      

     1      

     2      

 СК 40.2.5-2   

               

               

               

               

  С1   

  С31  

  С8   

  СП1  

  МН1  

     1      

     3      

     1      

     1      

     2      

 СК 60.2.5-2  

              

              

              

              

  С1   

  С31  

  С9   

  СП1  

  МН1  

     1      

     3      

     1      

     1      

     2      

     

 СК 40.3.7-1   

               

               

               

               

  С2   

  С32  

  С10  

  СП2  

  МН2  

     

     1      

     3      

     1      

     1      

     2      

  К 28.2.5-2  

              

              

              

              

  С4   

  С34  

  С24  

  МН4  

       

     1      

     1      

     1      

     2      

            

 СК 40.3.7-2   

               

               

               

               

  С2   

  С32  

  С12  

  СП2  

  МН2  

     1      

     3      

     1      

     1      

     2      

     

  К 38.2.5-1  

              

              

              

              

  С4   

  С34  

  С22  

  МН4  

       

     1      

     1      

     1      

     2      

            

 СК 60.3.7-1   

               

               

               

               

  С2   

  С32  

  С11  

  СП2  

  МН2  

     1      

     3      

     1      

     1      

     2   

        

  К 38.2.5-2  

              

              

              

              

  С4   

  С34  

  С25  

  МН4  

       

     1      

     1      

     1      

     2      

            

 СК 60.3.7-2   

               

               

               

               

  С2   

  С32  

  С13  

  СП2  

  МН2  

     1      

     3      

     1      

     1      

     2      

     

  К 48.2.5-1  

              

              

              

              

  С4   

  С34  

  С23  

  МН4  

       

     1      

     1      

     1      

     2      

            

  К 8.2.5-1    

               

               

               

  С3   

  С33  

  С15  

  МН3  

     1      

     1      

     1      

     2  

         

  К 48.2.5-2  

              

              

              

  С4   

  С34  

  С26  

  МН4  

     1      

     1      

     1      

     2      

  К 8.2.5-2    

               

               

               

  С3   

  С33  

  С18  

  МН3  

     1      

     1      

     1      

     2      

     

  К 12.2.7-1  

              

              

              

  С5   

  С35  

  С27  

  МН4  

     1      

     1      

     1      

     2      

  К 13.2.5-1   

               

               

               

  С3   

  С33  

  С16  

  МН3  

     1      

     1      

     1      

     2      

     

  К 12.2.7-2  

              

              

              

  С5   

  С35  

  С29  

  МН4  

     1      

     1      

     1      

     2      

  К 13.2.5-2   

               

               

               

  С3   

  С33  

  С19  

  МН3  

     1      

     1      

     1      

     2      

     

  К 17.2.7-1  

              

              

              

  С5   

  С35  

  С28  

  МН4  

     1      

     1      

     1      

     2      

  К 18.2.5-1   

               

               

               

  С3   

  С33  

  С17  

  МН3  

     1      

     1      

     1      

     2      

  К 17.2.7-2  

              

              

              

              

  С5   

  С35  

  С30  

  МН4  

       

     1      

     1      

     1      

     2      

            

  К 18.2.5-2   

               

               

               

  С3   

  С33  

  С20  

  МН3  

     1      

     1      

     1      

     2      

              

              

              

              

              

       

       

       

       

       

            

            

            

            

            

  К 28.2.5-1   

               

               

               

  С4   

  С34  

  С21  

  МН4

      

     1      

     1      

     1      

     2      

              

              

              

              

       

       

       

       

            

            

            

            

С1С5

Черт.3



С6С13

Черт.4


С15С30

Черт.5


С31; С32

Черт.6


МН1МН4

Черт.7



Таблица 2

Спецификация и выборка стали на одно арматурное изделие

и закладные детали











Марка



Позиция



Диаметр,


Длина,

Ко-

ли-


Масса од-

Выборка стали


изделия





мм


мм


чес-

тво


ной пози-

ции, кг


Диаметр,

мм


Длина,

м


Общая масса

изделия, кг


       

  С1   

       

1

2

3


 6АI    

 8АIII  

 8АIII  

130

1120

380


10

2

1


0,28

0,88

0,15


 6АI    

 8АIII  

        

1,30

2,62



1,31


       

  С2   

       

4

5

6


 6АI    

 12АIII

 12АIII


170

1650

630


15

2

1


0,56

2,93

0,56


 6АI    

 12АIII

        

2,56

3,93



4,05


       

  С3   

       

7

8

9


 6АI    

 12АIII

 12АIII


90

1160

380


6

2

1


0,12

2,06

0,35


 6АI    

 12АIII

        

5,4

2,7



2,53


       

  С4   

       

1

10

3


 6АI    

 8АIII  

 8АIII  

130

1180

380


6

2

1


0,17

0,93

0,15


 6АI    

 8АIII  

        

0,78

2,74



1,25


       

  С5   

       

1

11

6


 6АI    

 12АIII

 12АIII


130

1740

630


6

2

1


0,17

3,09

0,57


 6АI    

 12АIII

        

0,78

4,11



3,83


  С6   

       

12

13


 10АIII

 6АI    

4000

600


4

29


9,88

3,86


 10АIII

 6АI    

16,00

17,40


13,74


  С7   

       

14

13


 16АIII

 6АI    

6000

600


4

52


37,92

6,93


 16АIII

 6АI    

24,00

31,20


44,85


  С8   

       

15

13


        

 6АI    

4000

600


4

29


14,21

3,86


 12АIII

 6АI    

16,00

17,40


18,07


  С9   

       

16

13


 18АIII

 6АI    

6000

600


4

52


48,00

6,93


 18АIII

 6АI    

24,00

31,20


54,93


  С10  

       

12

17


 10АIII

 6АI    

4000

800


4

26


9,87

4,61


 10АIII

 6АI    

16,00

20,80


14,42


  С11  

       

14

17


 16АIII

 6АI    

6000

800


4

36


37,92

6,39


 16АIII

 6АI    

24,00

28,80


44,31


  С12  

       

15

17


 12АIII

 6АI    

4000

800


4

26


14,21

4,61


 12АIII

 6АI    

16,00

20,8


18,76


  С13  

       

16

17


 18АIII

 6АI    

6000

800


4

36


48,00

6,39


 18АIII

 6АI    

24

28,80


54,39


  С15  

       

18

19


 10АIII

 6АI    

710

450


4

7


1,75

0,70


 10АIII

 6АI    

28,40

3,15


2,45


  С16  

       

20


 10АIII

 6АI    

1210

450


4

10


2,99

1,00


 10АIII

 6АI    

4,84

4,5


3,99


  С17  

       

21

19


 10АIII

 6АI    

1710

450


4

14


4,22

1,39


 10АIII

 6АI    

6,84

6,30


5,62


  С18  

       

22

19


 12АIII

 6АI    

710

450


4

7


2,52

0,70


 12АIII

 6АI    

2,84

3,15


3,22


  С19  

       

23

19


 12АIII

 6АI    

1210

450


4

10


4,30

1,00


 12АIII

 6АI    

4,84

4,5


5,30


  С20  

       

24

19


 12АIII

 6АI    

1710

450


4

14


6,07

1,39


 12АIII

 6АI    

6,84

6,30


7,46


  С21  

       

25

26


 12АIII

 6АI    

2710

650


4

18


9,62

2,59


 12АIII

 6АI    

10,84

11,7


12,22


  С22  

       

27

26


 14АIII

 6АI    

3710

630


4

23


17,96

3,32


 14АIII

 6АI    

14,84

14,95


21,27


  С23  

       

28

26


 16АIII

 6АI    

4710

650


4

28


29,77

4,04


 16АIII

 6АI    

30,84

18,20


33,81


  С24  

       

29

26


 14АIII

 6АI    

2710

650


4

18


13,00

2,60


 14АIII

 6АI    

10,84

11,70


15,60


  С25  

       

30

26


 16АIII

 6АI    

3710

650


4

23


23,45

3,32


 16АIII

 6АI    

14,84

14,95


26,77


  С26  

       

31

26


 18АIII

 6АI    

4710

650


4

28


37,68

4,04


 18АIII

 6АI    

18,84

18,20


41,72


  С27  

       

32

26


 10АIII

 6АI    

1100

650


4

10


2,74

1,44


 10АIII

 6АI    

4,40

6,50


4,16


  С28  

       

33

26


 10АIII

 6АI    

1600

650


4

12


3,95

1,73


 10АIII

 6АI    

68,00

7,80


5,68


  С29  

       

34

26


 12АIII

 6АI    

1100

650


4

10


3,91

1,44


 12АIII

 6АI    

4,40

6,50


5,34


  С30  

       

35

26


 12АIII

 6АI    

1600

650


4

12


5,68

1,73


 12АIII

 6АI    

6,4

7,80


7,41


  С31  

       

4

36


 6АI    

 6АI    

170

420


9

4


0,33

0,37


        

 6АI    


3,21



2,13


  С32  

       

37

38


 6АI    

 6АI    

220

670


14

5


0,68

0,74


        

 6АI    


6,43



4,26


  С33  

       

7

39


 6АI    

 8АIII  

90

420


2

2


0,04

0,33


 6АI    

 8АIII  

0,18

0,84



0,37


  С34  

       

40

39


 6АI    

 8АIII  

145

420


2

2


0,06

0,33


 6АI    

 8АIII  

0,29

0,84



1,25


  С35  

       

40

41


 6АI    

 8АIII  

145

660


2

2


0,06

0,52


 6АI    

 8АIII  

0,29

1,32



0,58


  СП1  

42


 6АI    

3000


1


0,67


 6АI    

3,00


0,67


  СП2  

43


 6АI    

3800


1


0,84


 6АI    

3,80


0,84


  МН1  

44


 10АI   

730


1


0,45


 10АI   

0,73


0,45


  МН2  

45


 10АI   

850


1


0,52


 10АI   

0,85


0,52


  МН3  

46


 10АI   

655


1


0,40


 10АI   

0,65


0,40


  МН4  

47


 10АI   

780


1


0,48


 10АI   

0,78


0,48


Таблица 3 (Левая часть)

Выборка стали на одну колонну под параболические лотки












  

                                                                                  кг

     

          

          

                                                                Арматурные изделия

               

  

                                                        Арматурная сталь                          

      

      

      Марка

    колонны


                                          Класс А-III                

      

      

        Класс А-I


по ГОСТ 5781-75


      

      

          

          

по ГОСТ

 5781-75


                 по ГОСТ 5.1459-72       

                              

      

   Итого


       

Итого


   













      

   Диаметр


  Итого




          

          

                                     Диаметр, мм                         

      

      

     6 мм  

         

     

     




          

8


10


12


14


16


18










СК 40.2.5-1





9,88





10,91



6,30



6,30


17,21


СК 40.2.5-2



1,03


14,21





15,24






21,54


СК 60.2.5-1








37,92


38,95



9,35



9,35


48,30


СК 60.2.5-2

     





48,00


49,03






58,38


СК 40.3.7-1





9,88


3,49








13,37



9,47



9,47


22,84


СК 40.3.7-2



17,70



19,90






27,17


СК 60.3.7-1










37,92





41,41



11,24



11,24


52,65


СК 60.3.7-2

     



3,49




48,10




51,49






62,73


К 8.2.5-1





1,75


2,41











4,49



0,86



0,86


5,35


К 8.2.5-2





4,93











5,26






6,12


К 13.2.5-1



0,33


2,99


2,41





5,73



1,16



1,16


6,89


К 13.2.5-2





6,71











7,04






8,20


К 18.2.5-1





4,22


2,41











6,96



1



1,55


8,51


К 18.2.5-2

     



8,48








8,81






10,36


К 28.2.5-1








9,62


1,03



2,82



2,82


13,85


К 28.2.5-2








13,0


14,41






17,23


К 38.2.5-1



1,41





17,96


19,37



3,54



3,54


22,91


К 38.2.5-2








23,45


24,86






28,40


К 48.2.5-1








29,77


31,18



4,26



4,26


35,44


К 48.2.5-2

     





37,688


39,09






43,35


К 12.2.7-1





2,71


3,66











6,89



1,67



1,67


8,56


К 12.2.7-2



0,52


7,57





8,09






9,57


К 17.2.7-1





3,95


3,66











8,13



1,97



1,97


10,10


К 17.2.7-2

     



9,34








9,86






11,83



Таблица 3 (Правая часть)






          

          

              Закладная деталь


   

        

        

          

          

       Арматурная сталь


       

       

        

        

Марка колонны


Класс А-I по ГОСТ 5781-75



Итого



Всего





Диаметр, мм








     

6


10


       

                        

        

                     

СК 40.2.5-1


       

       

          

          

       

       

  18,78


СК 40.2.5-2


       

     0,67  

          

        0,9   

       

     1,57


  23,11


СК 60.2.5-1


       

       

          

          

       

       

  49,87


СК 60.2.5-2

     

       

          

       

  59,95


СК 40.3.7-1


       

       

          

          

       

       

  24,82


СК 40.3.7-2


       

    

          

       1,04   

       

    1,98


  29,15


СК 60.3.7-1


       

       

          

          

       

       

  54,63


СК 60.3.7-2


       

       

          

       

  64,71


К 8.2.5-1


       

       

          

          

       

       

   6,15


К 8.2.5-2


       

       

          

          

       

       

   6,92


К 13.2.5-1


       

       

          

        0,8    

       

      0,8  

   7,69


К 13.2.5-2


       

       

          

          

       

       

   9,00


К 18.2.5-1


    0,84  

       

          

          

       

       

   9,31


К 18.2.5-2


       

       

          

       

  11,16


К 28.2.5-1


       

       

          

          

       

       

  14,81


К 28.2.5-2


       

       

          

          

       

       

  18,19


К 38.2.5-1


       

       

          

          

       

       

  23,37


К 38.2.5-2


       

       

       0,96  

          

      0,96

       

  29,36


К 48.2.5-1


       

       

          

          

       

       

  36,40


К 48.2.5-2


       

       

          

          

       

       

  44,31


К 12.2.7-1


       

       

          

          

       

       

   9,51


К 12.2.7-2


       

       

          

          

       

       

  10,53


К 17.2.7-1


       

       

          

          

       

       

  11,06


К 17.2.7-2


       

          

       

  12,79

      

Приложение 2

    Обязательное  


Таблица 1

Расстояния между опорами при испытании

колонн на контрольную нагрузку




                                                                     мм   

Типоразмер

колонны


Расстояние до конца

с оголовником,




Расстояние между

опорами,



 CК40.2.5   

            

 CК60.2.5   

            

 CК40.3.7   

            

 CК60.3.7   

            

 К28.2.5    

            

 К38.2.5    

            

 К48.2.5   

      

600

900

600

900

410

560

710


2600

3900

2600

3900

1790

2440

3090



Таблица 2

Величины контрольных нагрузок на колонны по проверке

прочности






Марка колонны


Разрушающая нагрузка,

кН (кгс)


Марка колонны


Разрушающая нагрузка,

кН (кгс)

CК40.2.5-1

CК40.2.5-2

CК60.2.5-1

CК60.2.5-2

CК40.3.7-1

CК40.3.7-2

CК60.3.7-1


15 (1500)

23 (2300)

22 (2200)

26 (2600)

20 (2000)

28 (2800)

31 (3100)

CК60.3.7-2

К28.2.5-1

К28.2.5-2

К38.2.5-1

К38.2.5-2

К48.2.5-1

К48.2.5-2


38 (3800)

30 (3000)

39 (3900)

28 (2800)

35 (3500)

28 (2800)

34 (3400)


Текст документа сверен по:

официальное издание

М.: Издательство стандартов, 1980

Предоставлено компанией .