ГОСТ 25912-3-91 Плиты железобетонные предварительно напряженные ПАГ-20 для аэродромных покрытий

Автор: | 17.02.2015

ГОСТ 25912.3-91


Группа Ж33


ГОСУДАРСТВЕННЫЙ СТАНДАРТ СОЮЗА ССР


ПЛИТЫ ЖЕЛЕЗОБЕТОННЫЕ ПРЕДВАРИТЕЛЬНО

НАПРЯЖЕННЫЕ ПАГ-20 ДЛЯ АЭРОДРОМНЫХ ПОКРЫТИЙ

Конструкция

Reinforced concrete prestressed slabs

PAG-20 for aerodrome pavement.

Structure


ОКП 58 6711                        

         Дата введения 1992-01-01


ИНФОРМАЦИОННЫЕ ДАННЫЕ


1.  РАЗРАБОТАН И ВНЕСЕН Министерством обороны СССР

РАЗРАБОТЧИКИ:  Б.И.Демин, канд. техн. наук (руководитель темы); В.А.Долинченко, канд. техн. наук; Н.Б.Васильев, канд. техн. наук; В.А.Кульчицкий, канд. техн. наук; К.Д.Жуков; Л.Б.Пчелкина


2.  УТВЕРЖДЕН И ВВЕДЕН В ДЕЙСТВИЕ Постановлением Государственного строительного комитета СССР от 12.03.91 N 8


3.  ВВЕДЕН ВПЕРВЫЕ


4.  ССЫЛОЧНЫЕ НОРМАТИВНО-ТЕХНИЧЕСКИЕ ДОКУМЕНТЫ



       Обозначение НТД, на который

             дана ссылка           

     

       Номер пункта


          ГОСТ 25912.0-91          

     

          ГОСТ 25912.4-91          

      1; 3

     

       8




Настоящий  стандарт распространяется на предварительно напряженные железобетонные плиты ПАГ-20 размерами в плане 6х2 м и толщиной 20 см, изготовляемые из тяжелого бетона и предназначенные для устройства сборных аэродромных покрытий, и устанавливает конструкцию указанных плит.


1.  Форма плит — по ГОСТ 25912.0.


2.  Технические показатели плит приведены в табл. 1.



                                                     Таблица 1









Марка

плиты


Напрягаемая

продольная

арматура


Класс бетона по

прочности


Объем

бетона

на


Расход арматуры на плиту, кг






на плиту



на растяжение при изгибе


на

сжатие


плиту,

м




Напрягаемой


Ненапрягаемой


Итого


ПАГ-20V  

        

 14D14АтV  

 14D14АV   

           

     3,6


            

  В25


            

  2,4


       

101,6  

 

                

  132,1



 233,7


ПАГ-20IV

        

        

 14D14АтIVC

 14D14АтIV

 14D14АIV  

         

         

         

      

      

      

      

      

      

105,8  

       

       

        

        

        

 237,9


Примечания:


1.  Расход напрягаемой арматуры и общий расход арматуры на плиту приведены:

над  чертой — теоретический при условной длине стержней напрягаемой арматуры, равной 6000 мм;

под  чертой — с учетом выпусков напрягаемой арматуры для ее захвата при натяжении, длина которой принята 6250 мм.

Дополнительный  расход металла на изготовление анкеров для временного закрепления напрягаемой арматуры на упорах формы составляет 2,8 кг на плиту.


2.  Расход напрягаемой арматуруры и общий расход арматуры на плиту уточняют с учетом действительной длины напрягаемой арматуры, принимаемой в зависимости от способа натяжения арматуры и конструкции захватных устройств для ее натяжения.


3.  Плиты должны удовлетворять всем требованиям ГОСТ 25912.0 и настоящего стандарта.


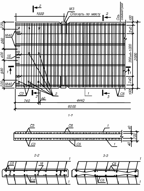
4.  Армирование плит должно соответствовать приведенному на чертеже.

1 — напрягаемая арматура; 2 — крепление сеток С3

5.  Верхние и нижние сетки С3 следует крепить скобами К3 (поз. 18).

Средние  сетки С5 закрепляют путем переплетения с напрягаемой продольной арматурой согласно чертежу (сеч. 3-3) или крепят скобами К6, устанавливаемыми по длине сетки через 100 см и в три ряда по ее ширине через 80 см.


6.  Номинальная толщина защитного слоя бетона до арматуры:

32  мм — для нижней и верхней напрягаемой продольной арматуры;

21  мм — для стержней сетки С3;

27  мм — для стержней сетки С5.

При  закреплении сетки С5 путем переплетения ее с напрягаемой арматурой толщину защитного слоя до стержней сетки С5 определяют исходя из схемы, приведенной на чертеже (сеч. 3-3).


7.  Спецификация арматурных и монтажно-стыковых изделий, а также выборка арматурной стали на плиту приведены в табл. 2.


8.  Арматурные и монтажно-стыковые изделия — по ГОСТ 25912.4.


                                                     Таблица 2







  Арматурные и монтажно-

    стыковые изделия     

 Число  

изделий


      Выборка стали на плиту


                         

на плиту


Сечение


Общая длина, м


 Масса, кг


 Сетка С3                

                         

   4    

        

D10АII

D5ВрI  

    79,20     

    12,00     

  48,88

   1,72


 Сетка С5                

   2    

D5ВрI  

   334,40     

  48,16


             

 Монтажно-   

стыковые     

           

  М3       

   4    

        

D22АI  

D10АI  

     3,20     

     2,00     

   9,52

   1,24


изделия      

             

             

           

  М4а      

           

        

   8    

        

D18АI  

D10АI  

-80х8  

     4,80     

     4,00     

     1,60     

   9,60

   2,48

   8,00


Спираль (поз. 15)        

   28   

D3ВрI  

    35,00     

   1,82


Скоба К3 (поз.


 18)       

   18   

D5ВрI  

     5,04     

   0,72


Примечание.  При креплении сеток С5 скобами К6 диаметром 3 мм (п. 6) их число на плиту — 15, расход стали на них составляет 0,22 кг на плиту.




Текст документа сверен по:

официальное издание

М.: Издательство стандартов, 1991

Предоставлено компанией .